455 Uttoxeter Road, Blythe Bridge, Stoke-on-Trent, Staffordshire, ST11 9NT

Ref: Lot 7

Loading the bidding panel...

Registration Guide

Finance available on this property


UNCONDITIONAL LOT Buyers Premium Applies Upon the fall of the hammer, the Purchaser shall pay a 5% deposit and a 5%+VAT (subject to a minimum of £5,000+VAT) buyers premium and contracts are exchanged. The purchaser is legally bound to buy and the vendor is legally bound to sell the Property/Lot. The auction conditions require a full legal completion 28 days following the auction (unless otherwise stated).

Description

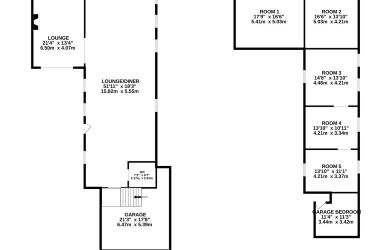
An exciting opportunity to create an outstanding family home, this project offers the potential to transform into a stunning 5 or 6 bedroom residence with exceptional living space throughout. Designed with modern family life in mind, the property sits on just under a quarter of an acre, providing the perfect balance of generous accommodation and outdoor space.

Set in the sought-after village of Blythe Bridge, the property enjoys open views over the surrounding Staffordshire countryside, giving a sense of peace and space while still being within easy reach of excellent local amenities. Blythe Bridge offers a range of shops, schools, and leisure facilities, while superb transport links make commuting to nearby towns and cities such as Stoke-on-Trent, Uttoxeter, and Derby simple and convenient. The nearby Peak District National Park adds to the lifestyle appeal, with endless opportunities for walking, cycling, and family days out in nature.

This is a rare chance to create a truly bespoke forever home in a location that blends countryside living with accessibility—perfect for families wanting space, style, and convenience all in one.

Tenure

Freehold

Buyers Premium

1% plus vat

Pre Auction Offers Are Considered

The seller of this property may consider a pre-auction offer prior to the auction date.  All auction conditions will remain the same for pre-auction offers which include but are not limited to, the special auction conditions which can be viewed within the legal pack, the Buyer’s Premium, and the deposit.  To make a pre-auction offer we will require two forms of ID, proof of your ability to purchase the property and complete our auction registration processes online.  To find out more information or to make a pre-auction offer please contact us.

Special Conditions

Any additional costs will be listed in the Special Conditions within the legal pack and these costs will be payable on completion. The legal pack is available to download free of charge under the ‘LEGAL DOCUMENTS’.  Any stamp duty and/or government taxes are not included within the Special Conditions within the legal pack and all potential buyers must make their own investigations.

Key Feature 1

Prime development opportunity – scope to create a substantial 5–6 bedroom family home with expansive living space.

Key Feature 2

Generous plot – set on just under a quarter of an acre, offering ample outdoor space and flexibility for design

Key Feature 3

Sought-after location – Blythe Bridge provides strong demand for quality family homes, with excellent schools and amenities nearby.

Council Tax Band

F


* The Guide Price given is an indication as to where the Reserve is currently set. The Reserve is the minimum price that the auctioneer is authorised by the vendor to sell the property for. It is subject to change throughout the marketing period. Where the Guide Price is a single figure, the current Reserve will not be more than 10% above that single figure, and where a price range is given (i.e. £50,000 - £55,000), the Reserve will not exceed the upper level of the range. It is not necessarily what the auctioneer expects it will sell for.

We would like to point out that all measurements, floor plans and photographs are for guidance purposes only (photographs may be taken with a wide angled/zoom lens), and dimensions, shapes and precise locations may differ to those set out in these sales particulars which are approximate and intended for guidance purposes only.

These particulars, whilst believed to be accurate are set out as a general outline only for guidance and do not constitute any part of an offer or contract. Intending purchasers should not rely on them as statements of representation of fact, but must satisfy themselves by inspection or otherwise as to their accuracy. No person in this firms' employment has the authority to make or give any representation or warranty in respect of the property.

Viewing: Due to the nature and condition of auction properties, the auctioneers highlight the potential risk that viewing such property carries and advise all to proceed with caution and take necessary requirements to ensure their own safety whist viewing any lots offered. Viewings are conducted entirely at the potential buyers own risk, these properties are not owned or controlled by Town & Country Property Auctions and the auctioneers will not be held liable for loss or injury caused while viewing or accessing the lot. Due to the nature of some auction properties, electricity may not be turned on, therefore viewing times are restricted. Viewers will need to bring their own lighting/ ladders if wanting to inspect cupboards, cellars and roof spaces. Some viewings are carried out by third party agents and we will endeavour to give appropriate notice should the published viewing time change. Town & Country Property Auctions will not be liable for any costs or losses incurred due to viewing cancellations or no shows.

Loading legal documents ...

Register for auction alerts

By subscribing here you agree to receive relevant emails, news and updates from Town & Country Property Auctions. You can unsubscribe at any time.

Register for auction alerts

Selling

No fuss, fast & free*

Town and Country offer a free selling service to a growing number of people choosing to sell their property quickly and easily through auction.

*Contact individual regions for cost

Buying

How to bid

Our buying at auction guide will help you throughout the process providing you with guidance to confidently secure your purchase.