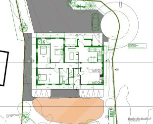
Nestled in the charming village of Brereton, this prime plot of land presents an exceptional opportunity to build a stunning five-bedroom detached family home. Boasting full planning permission, the proposed residence is designed to offer spacious and contemporary living, blending seamlessly with its picturesque surroundings. Tucked away in a secluded position adjacent to 44 School Lane, this exclusive setting ensures both privacy and tranquillity while remaining within easy reach of local amenities, excellent schools, and convenient transport links.
Nestled in the charming village of Brereton, this prime plot of land presents an exceptional opportunity to build a stunning five-bedroom detached family home. Boasting full planning permission, the proposed residence is designed to offer spacious and contemporary living, blending seamlessly with its picturesque surroundings. Tucked away in a secluded position adjacent to 44 School Lane, this exclusive setting ensures both privacy and tranquillity while remaining within easy reach of local amenities, excellent schools, and convenient transport links.
Set in the heart of Cheshire’s beautiful countryside, this generously sized plot provides an idyllic backdrop for a dream home. The approved plans allow for an elegant and thoughtfully designed property, perfect for modern family living with ample indoor and outdoor space. Whether you envision a luxurious retreat or a forever family home, this rare opportunity combines the best of rural charm with everyday convenience, making it a truly desirable prospect for those seeking a bespoke living experience in Sandbach.
Similar properties in the area have sold:
56, School Lane, Sandbach, CW11 1RN - Sold - 06/01/2022 - £840,000
4, Dukes Oak Barns, Holmes Chapel Road, Sandbach, CW11 1SD - Sold - 14/10/2022 - £800,000
Freehold
3500 plus vat
The seller of this property may consider a pre-auction offer prior to the auction date. All auction conditions will remain the same for pre-auction offers which include but are not limited to, the special auction conditions which can be viewed within the legal pack, the Buyer’s Premium, and the deposit. To make a pre-auction offer we will require two forms of ID, proof of your ability to purchase the property and complete our auction registration processes online. To find out more information or to make a pre-auction offer please contact us.
Any additional costs will be listed in the Special Conditions within the legal pack and these costs will be payable on completion. The legal pack is available to download free of charge under the ‘LEGAL DOCUMENTS’. Any stamp duty and/or government taxes are not included within the Special Conditions within the legal pack and all potential buyers must make their own investigations.
* The Guide Price given is an indication as to where the Reserve is currently set. The Reserve is the minimum price that the auctioneer is authorised by the vendor to sell the property for. It is subject to change throughout the marketing period. Where the Guide Price is a single figure, the current Reserve will not be more than 10% above that single figure, and where a price range is given (i.e. £50,000 - £55,000), the Reserve will not exceed the upper level of the range. It is not necessarily what the auctioneer expects it will sell for.
We would like to point out that all measurements, floor plans and photographs are for guidance purposes only (photographs may be taken with a wide angled/zoom lens), and dimensions, shapes and precise locations may differ to those set out in these sales particulars which are approximate and intended for guidance purposes only.
These particulars, whilst believed to be accurate are set out as a general outline only for guidance and do not constitute any part of an offer or contract. Intending purchasers should not rely on them as statements of representation of fact, but must satisfy themselves by inspection or otherwise as to their accuracy. No person in this firms' employment has the authority to make or give any representation or warranty in respect of the property.
Viewing: Due to the nature and condition of auction properties, the auctioneers highlight the potential risk that viewing such property carries and advise all to proceed with caution and take necessary requirements to ensure their own safety whist viewing any lots offered. Viewings are conducted entirely at the potential buyers own risk, these properties are not owned or controlled by Town & Country Property Auctions and the auctioneers will not be held liable for loss or injury caused while viewing or accessing the lot. Due to the nature of some auction properties, electricity may not be turned on, therefore viewing times are restricted. Viewers will need to bring their own lighting/ ladders if wanting to inspect cupboards, cellars and roof spaces. Some viewings are carried out by third party agents and we will endeavour to give appropriate notice should the published viewing time change. Town & Country Property Auctions will not be liable for any costs or losses incurred due to viewing cancellations or no shows.
All auctioneer fees and deposits stated are non-refundable. The deposit will be applied toward the final purchase price. Auctioneer fees, while not contributing to the purchase price, will still be included in the total chargeable consideration of the property when calculating Stamp Duty Land Tax, Land Transaction Tax, or Land and Buildings Transaction Tax (as applicable depending on whether the property is located in England, Wales, or Scotland).
By setting a proxy bid, the system will automatically bid on your behalf to maintain your position as the highest bidder, up to your proxy bid amount. If you are outbid, you will be notified via email so you can opt to increase your bid if you so choose.
If two of more users place identical bids, the bid that was placed first takes precedence, and this includes proxy bids.
Another bidder placed an automatic proxy bid greater or equal to the bid you have just placed. You will need to bid again to stand a chance of winning.
By subscribing here you agree to receive relevant emails, news and updates from Town & Country Property Auctions. You can unsubscribe at any time.
No fuss, fast & free*
Town and Country offer a free selling service to a growing number of people choosing to sell their property quickly and easily through auction.
*Contact individual regions for cost
How to bid
Our buying at auction guide will help you throughout the process providing you with guidance to confidently secure your purchase.