Station Lodge, Westbury, Shrewsbury, Shropshire, SY5 9DA

Ref: Lot 1

Loading the bidding panel...

Registration Guide

Finance available on this property

Contact agent


Town & Country Property Auctions Cheshire, Shropshire & Staffordshire
Town & Country Property Auctions Cheshire, Shropshire & Staffordshire

Unconditional (Buyer's Premium)


UNCONDITIONAL LOT Buyers Premium Applies Upon the fall of the hammer, the Purchaser shall pay a 5% deposit and a 3%+VAT (subject to a minimum of £6,000+VAT) buyers premium and contracts are exchanged. The purchaser is legally bound to buy and the vendor is legally bound to sell the Property/Lot. The auction conditions require a full legal completion 28 days following the auction (unless otherwise stated).

Description

A substantial and highly versatile 7-bedroom Victorian detached home, set in around 1 acre with stunning countryside views and excellent potential for further development.
Originally built in 1899, this impressive former hotel blends character features with modern living, including a striking open-plan kitchen/dining/family room added in 2018.

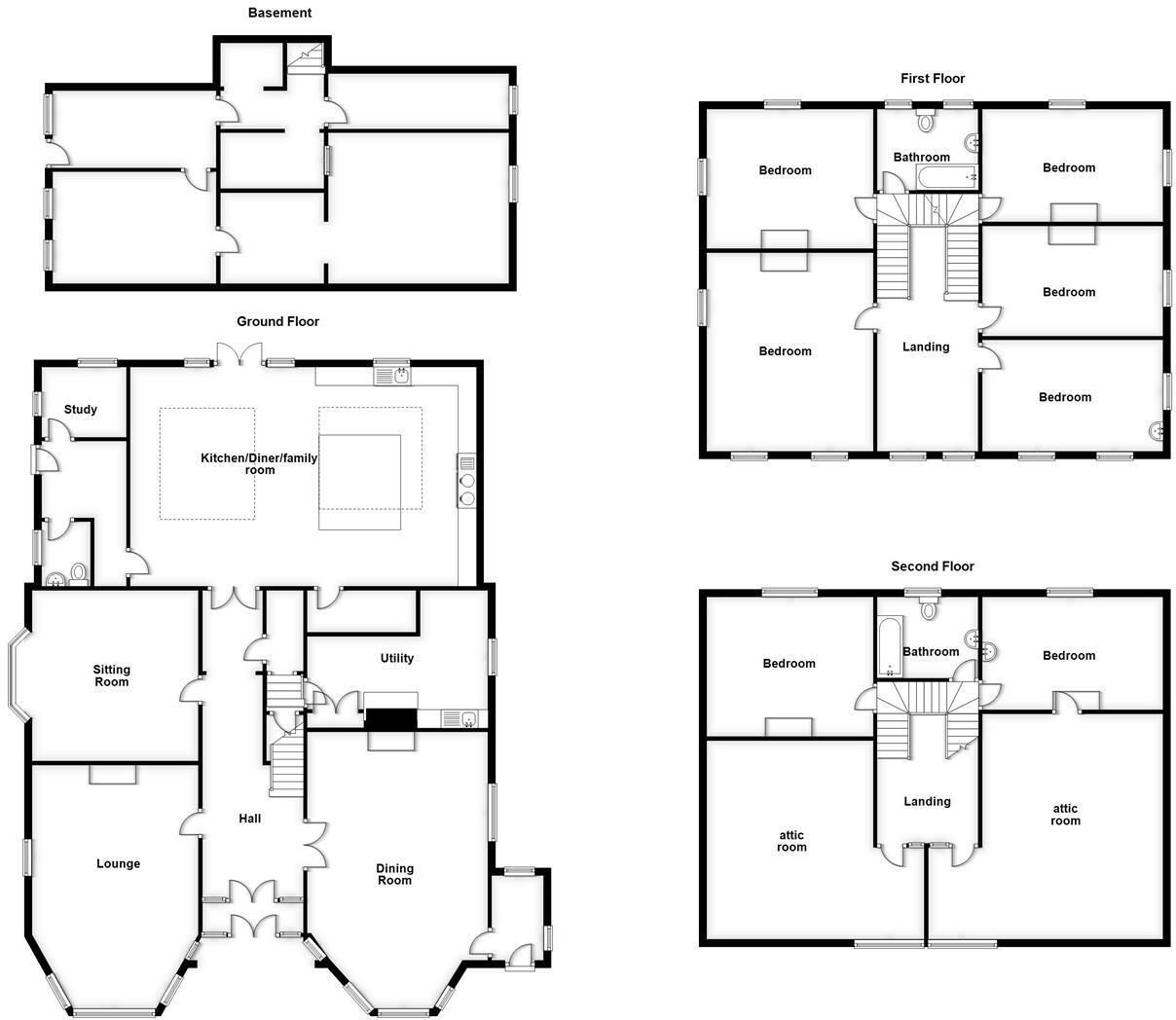
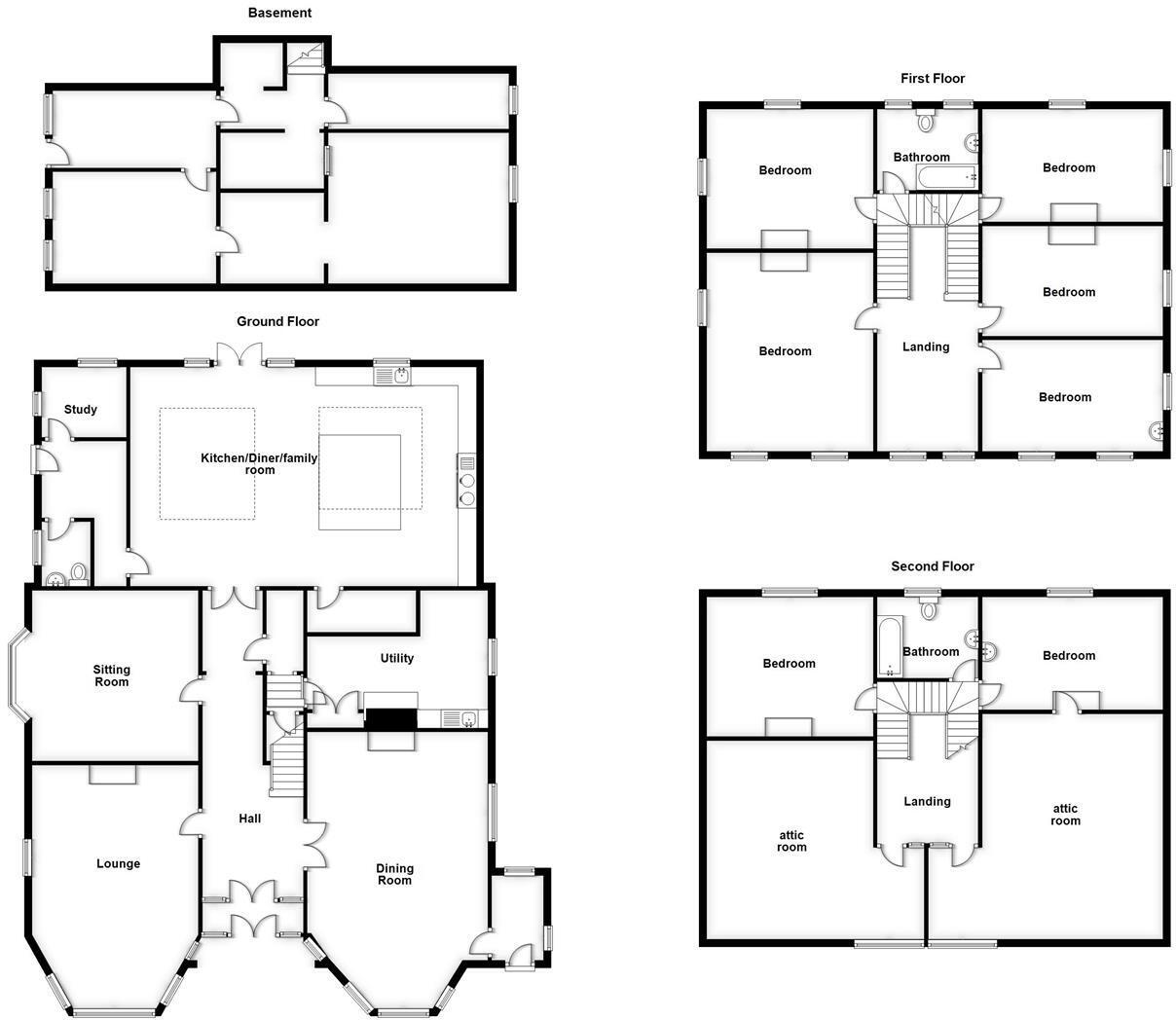
The Property
A grand entrance hall sets the tone, leading to a range of spacious and flexible living areas including a lounge, dining room, sitting room, playroom and utility.
The heart of the home is the impressive open-plan kitchen/diner/family room, designed for modern living with high-quality fittings, a central island and direct access to the gardens.
Upstairs offers 7 well-proportioned bedrooms, along with attic rooms and extensive cellar space, giving excellent flexibility for growing families or multi-generational living.
The Accommodation In Greater Detail Comprises -

Impressive period arched open porch leading to enclosed porch, with quarry tiled floor, sealed unit double glazed double doors with matching windows to side, gives access to:

Entrance Porch - Having period tiled floor, period leaded stained glazed wooden door with matching windows to side, gives access to:

Reception Hallway - Having period tiled floor and feature stone steps, coving to ceiling, radiator. large walk-in store with radiator.

Wooden panel door from reception hallway gives access to:

Bay Fronted Lounge - 6.35m max into bay x 4.90m (20'10 max into bay x 1 - Having wood burning stove set to a tiled hearth with impressive timber fire surround set to an exposed brick chimney breast, walk-in bay with a range of glazed sash windows to front, glazed sash window to side, radiator, exposed wooden flooring, coving to ceiling, dado rail.

From reception hallway wooden framed double doors give access to:

Bay Fronted Dining Room - 7.14m max into bay x 4.95m (23'5 max into bay x 16 - Having walk-in bay with glazed sash windows to front, glazed sash window to side, feature exposed brick chimney breast with open fire, coving to ceiling, dado rail, radiator.

Wooden framed glazed door from bay fronted dining room gives access to:

Lobby - With glazed sash window to side, stained glazed wooden entrance door to front.

Access is given to:

Former Gentleman's Urinals -

Panel door from reception hallway gives access to:

Bay Fronted Sitting Room - 5.82m max into bay x 4.62m (19'1 max into bay x 15 - Having walk-in bay with glazed sash windows, feature exposed brick chimney breast with wood burning stove, wood effect flooring, radiator.

Wooden panel door from reception hallway gives access to:

L Shaped Utility - 4.93m max x 3.86m max (16'2 max x 12'8 max) - Having wooden eye level and base units, fitted Granite and wooden worktop with inset ceramic twin sink and mixer tap over, glazed sash window to side, tiled floor, radiator, large original shelved storage cupboards, wall mounted extractor fan, space for appliances.

Wooden framed glazed double doors from reception hallway gives access to:

Impressive Extended Kitchen/Diner/Family Room - 9.32m x 5.92m (30'7 x 19'5) - The kitchen comprises: A range of bespoke eye level and base units with built-in cupboards and drawers, fitted Granite worktops with butler sink and drainer unit to side and mixer tap over, free standing AGA cooker, space for an American style fridge freezer, kitchen island with integrated breakfast bar with fitted Granite worktop, oven below, induction hob, storage cupboards, integrated dishwasher, wood effect flooring with underfloor heating, aluminum framed roof lantern, glazed sash window with pleasing aspect to rear.

The dining/family area comprises: Wood effect flooring with underfloor heating, aluminum glazed roof lantern, sealed unit double glazed French doors giving access to rear gardens, sealed unit double glazed windows to side and above offering a pleasing rural aspect, recessed spotlights to ceiling.

Wooden door from kitchen/diner/family room gives access to:

Walk-In Pantry - 2.95m x 1.17m (9'8 x 3'10) - Having fitted shelving, tiled floor.

Panel door from kitchen/diner/family gives access to:

Rear Entrance - Having tiled floor, part glazed door giving access to side and rear of property.

From rear entrance panel doors give access to:

Study - 2.62m x 1.96m (8'7 x 6'5) - Having glazed sash windows to rear and side of property, wood effect flooring.

Cloakroom - Having WC with hidden cistern, contemporary wash hand basin with mixer tap over, glazed sash window to side., tiled floor, recessed spotlights to ceiling.

Panel door from reception hallway gives access to a:

Large Cellar - Section one 16'1 x 11'4, Section two 9'2 x 5'0, Section three 5'0 x 4'4, Section four 16'2 x 6'11, Section five 16'3 x 9'11, Section six 9'10 x 7'8, Section seven 16'2 x 14'7. Some of the sections have glazed windows and one of them has a UPVC double glazed door to the side of the property.

From reception hallway stairs rise to:

Half Landing - With panel doors giving access to: Two bedrooms and family bathroom.

Bedroom - 4.88m x 4.70m (16'0 x 15'5) - Having two secondary double glazed sash windows to rear and side of the property, period fireplace, original fitted store cupboard, radiator, coving to ceiling, exposed wooden flooring.

Bedroom - 4.88m x 3.86m (16'0 x 12'8) - Having two secondary double glazed sash windows to side and rear of property, original fitted store cupboard, period fireplace, radiator, exposed wooden flooring, coving to ceiling.

Bathroom - Having a three piece suite comprising: Timber style panel bath with shower attachment off taps, glazed shower screen to side, pedestal wash hand basin, low flush WC, two secondary double glazed sash window to rear, radiator, painted exposed wooden flooring, wall mounted extractor fan.

From half landing stairs rise to:

First Floor Landing - Having radiator, two secondary double glazed sash windows to front, coving to ceiling.

From first floor landing panel doors give access to: Three bedrooms.

Bedroom - 5.41m x 4.93m (17'9 x 16'2) - Having three secondary double glazed sash windows to front and side of property, original fitted store cupboard, period fireplace, antique style radiator, exposed wooden flooring, coving to ceiling.

Bedroom - 4.90m x 3.05m (16'1 x 10'0) - Having secondary double glazed sash window to side, period fireplace, original fitted store cupboard, exposed wooden flooring, radiator.

Bedroom - 4.93m x 3.02m (16'2 x 9'11) - Having three secondary double glazed sash windows to side and front of property, pedestal wash hand basin, radiator, exposed wooden flooring.

From first floor landing stairs rise to:

Half Landing - With wooden panel doors giving access to: Two further bedrooms and bathroom

Bedroom - 5.03m x 4.60m (16'6 x 15'1) - Having glazed window to rear, exposed wooden flooring, radiator, exposed timbers to ceiling, pedestal wash hand basin, period fireplace.

Bedroom - 4.88m x 3.89m (16'0 x 12'9) - Having glazed window to rear, pedestal wash hand basin, exposed wooden flooring, radiator, period fireplace, exposed timbers to ceiling.

Bathroom - Having a three piece suite comprising: Timber style panel bath with shower attachment off taps and glazed shower screen to side, low flush WC, pedestal wash hand basin, exposed wooden flooring, glazed window to rear, heated towel rail, shaver point.

From half landing stairs rise to:

Second Floor Landing - Having exposed wooden flooring.

Wooden framed glazed panel doors give access to: Two loft rooms.

Loft Room One - 4.90m max x 4.19m excluding recesses (16'1 max x 1 - Having glazed windows to front, exposed wooden flooring.

Loft Room Two - 5.03m max x 5.16m max (16'6 max x 16'11 max ) - Having exposed wooden flooring, glazed windows to front.

Outside - To the right hand-side of the property there is a gravel forecourt which could provide additional parking if required. To the left hand-side of the property there is a generous size driveway with turning area providing ample parking for a number of vehicles. Directly to the rear of the property there is a garden area with natural pond which borders local farmland and takes full advantage of the panoramic views. To the side of this there is a substantial and interesting detached outbuilding with adjoining stores, which subject to planning could provide further accommodation i.e annex / holiday let etc. Any genuinely interested parties will have to make their own enquires to the local planning department with regards to this.
________________________________________
Outside
The property sits within generous grounds of approximately 1 acre, featuring lawned gardens, a natural pond and uninterrupted views over surrounding farmland.
A large detached outbuilding with adjoining stores offers exciting scope for conversion into an annexe or holiday let (subject to planning).
Ample parking is provided via a large driveway and additional forecourt.
________________________________________
Location
Situated on the edge of the popular village of Westbury, just:
• 8 miles from Welshpool
• 10 miles from Shrewsbury
Excellent road links nearby provide easy access to the M54, M5 and M6, making it ideal for commuters.
___________________________________________________________________________
Nearby Schools

• Westbury School
• Brynhafren CP School
• Long Mountain CofE Primary School
• Minsterley Primary School
• Trinity CofE Primary School
• Pontesbury CofE Primary School
• Mary Webb School and Science College
• Prestfelde
• Shrewsbury School
• Shrewsbury High School for Girls

________________________________________
Additional Information
The current owners are relocating, creating a rare opportunity for buyers to secure this impressive home at a level below full open market value.
________________________________________
Viewings
Early viewings from serious prospective buyers who can demonstrate that they are proceedable under auction terms are strongly recommended to appreciate the space, setting and potential on offer.

Tenure

Freehold

Buyers Premium

* Plus 3% Buyers Premium plus VAT

Pre Auction Offers Are Considered

The seller of this property may consider a pre-auction offer prior to the auction date.  All auction conditions will remain the same for pre-auction offers which include but are not limited to, the special auction conditions which can be viewed within the legal pack, the Buyer’s Premium, and the deposit.  To make a pre-auction offer we will require two forms of ID, proof of your ability to purchase the property and complete our auction registration processes online.  To find out more information or to make a pre-auction offer please contact us.

Special Conditions

Any additional costs will be listed in the Special Conditions within the legal pack and these costs will be payable on completion. The legal pack is available to download free of charge under the ‘LEGAL DOCUMENTS’.  Any stamp duty and/or government taxes are not included within the Special Conditions within the legal pack and all potential buyers must make their own investigations.

Key Feature 1

Impressive 7 Bedroom Detached Property.

Key Feature 2

Large Grounds of approximately 1.0 acre.

Key Feature 3

Outbuildings.

Council Tax Band

F


* The Guide Price given is an indication as to where the Reserve is currently set. The Reserve is the minimum price that the auctioneer is authorised by the vendor to sell the property for. It is subject to change throughout the marketing period. Where the Guide Price is a single figure, the current Reserve will not be more than 10% above that single figure, and where a price range is given (i.e. £50,000 - £55,000), the Reserve will not exceed the upper level of the range. It is not necessarily what the auctioneer expects it will sell for.

We would like to point out that all measurements, floor plans and photographs are for guidance purposes only (photographs may be taken with a wide angled/zoom lens), and dimensions, shapes and precise locations may differ to those set out in these sales particulars which are approximate and intended for guidance purposes only.

These particulars, whilst believed to be accurate are set out as a general outline only for guidance and do not constitute any part of an offer or contract. Intending purchasers should not rely on them as statements of representation of fact, but must satisfy themselves by inspection or otherwise as to their accuracy. No person in this firms' employment has the authority to make or give any representation or warranty in respect of the property.

Viewing: Due to the nature and condition of auction properties, the auctioneers highlight the potential risk that viewing such property carries and advise all to proceed with caution and take necessary requirements to ensure their own safety whist viewing any lots offered. Viewings are conducted entirely at the potential buyers own risk, these properties are not owned or controlled by Town & Country Property Auctions and the auctioneers will not be held liable for loss or injury caused while viewing or accessing the lot. Due to the nature of some auction properties, electricity may not be turned on, therefore viewing times are restricted. Viewers will need to bring their own lighting/ ladders if wanting to inspect cupboards, cellars and roof spaces. Some viewings are carried out by third party agents and we will endeavour to give appropriate notice should the published viewing time change. Town & Country Property Auctions will not be liable for any costs or losses incurred due to viewing cancellations or no shows.

All auctioneer fees and deposits stated are non-refundable. The deposit will be applied toward the final purchase price. Auctioneer fees, while not contributing to the purchase price, will still be included in the total chargeable consideration of the property when calculating Stamp Duty Land Tax, Land Transaction Tax, or Land and Buildings Transaction Tax (as applicable depending on whether the property is located in England, Wales, or Scotland).

Loading legal documents ...

Register for auction alerts

By subscribing here you agree to receive relevant emails, news and updates from Town & Country Property Auctions. You can unsubscribe at any time.

Register for auction alerts

Selling

No fuss, fast & free*

Town and Country offer a free selling service to a growing number of people choosing to sell their property quickly and easily through auction.

*Contact individual regions for cost

Buying

How to bid

Our buying at auction guide will help you throughout the process providing you with guidance to confidently secure your purchase.